Brošūras

Atpakaļ
CAD bibliotēka

CAD bibliotēka

Attēli

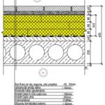
Virsraksts

Lejupielādēt PDF

Lejupielādēt DWG

Trīskāršas mūra sienas un pamatu sijas siltināšanas detaļa
Sienas ar vēdināmu fasādi un cokola savienojuma detaļa. Cokola apdare no cokola plāksnēm
„Ziemas dārza“ cokola apsildīšanas detaļa (2 variants)
Trīskārša sienas plāksnes un cokola sijas savienojuma detaļa  (1 variants)
Trīskārša sienas plāksnes un cokola sijas savienojuma detaļa  (3 variants)
Siltināts cokols ar urbtu pamatu, režģi un grīdas konstrukcija
Pasīvā nama pamatu un grīdu virs grunts siltināšanas detaļa  (1 variants)
Pasīvā nama pamatu un grīdu virs grunts siltināšanas detaļa (2 variants)
Renovējamas ēkas cokola papildu siltināšana
Plaknes pamatu ierīkošanas detaļa. Finnfoam LB-300 un LS-300
Apmetamas mūra sienas cokola ar malu siltināšanas detaļa. Finnfoam FI
U formas veidņi ar pamata daļas platumu 200mm
Apmetamas mūra sienas cokola ar malu siltināšanas detaļa. Finfoamm CW
U formas veidņi ar pamata daļas platumu 250mm
Trīskāršas mūra sienas cokola ar pagrabu siltināšanas detaļa
U formas veidņi ar pamata daļas platumu 300mm
Apmetamas mūra sienas cokola siltināšanas detaļa. Finnfoam FI
Apmetamas mūra sienas cokola siltināšanas detaļa. Pamata klājums no Finfoamm plāksnēm
Apmetamas mūra sienas cokola ar malu siltināšanas detaļa. Detaļa A
Apsildāmo grīdu virs pārseguma uz neapsildāma pagraba siltināšanas detaļa
Mitru telpu grīdu virs pārseguma uz neapsildāma  pagraba siltināšanas detaļa
Mitru telpu grīdu virs pārseguma uz neapsildāma  pagraba siltināšanas detaļa. FF-PIR
Renovējamas ēkas grīdu virs seguma uz neapkurināma pagraba siltināšanas detaļa
Renovējamas ēkas grīdu virs seguma uz neapkurināma pagraba siltināšanas detaļa. FF-PIR
Ventilējamu apakšējā stāva grīdu virs koka sijām siltināšanas detaļa
Ventilējamu apakšējā stāva apsildāmo grīdu virs koka sijām siltināšanas detaļa
Apsildāmo grīdu virs grunts siltināšanas detaļa
Vēdināmo grīdu virs grunts siltināšanas detaļa
Mitru telpu grīdu virs grunts siltināšanas detaļa
Lielas slodzes nesošo grīdu virs grunts siltināšanas detaļa
Pasīvā nama grīdu virs grunts siltināšanas detaļa
Grīdu virs pārseguma uz neapsildāma pagraba siltināšanas detaļa
Grīdu virs grunts siltināšanas detaļa
Sienas siltināšanas no iekšpuses detaļa (iekšējais stūris)
Sienas siltināšanas no iekšpuses detaļa (ārējais stūris)
Ārējās sienas ar apdares dēļu apdari siltināšanas detaļa. Finnfoam FF-PIR
Ārējās sienas ar apdares dēļu apdari siltināšanas detaļa. Finnfoam FF-PIR
Ārējās sienas ar apdares dēļu apdari siltināšanas detaļa. FF-EPS
Apmetamas ķieģeļu vai bloku sienas siltināšanas detaļa
Ārējās sienas ar apdares dēļu apdari siltināšanas detaļa. Finnfoam FF-PIR
Ārējās sienas ar apdares dēļu apdari siltināšanas detaļa. Finnfoam FF-PIR
Trīskāršas ķieģeļu vai bloku mūra sienas ar gaisa spraugām siltināšanas detaļa
Trīskāršas ķieģeļu vai bloku mūra sienas ar gaisa spraugām siltināšanas detaļa. FF-EPS
Trīskāršas ķieģeļu vai bloku mūra sienas ar gaisa spraugām siltināšanas detaļa
Ekspluatējama siltinātā jumta detaļa pie parapeta
Renovējamā taisnā jumta apsildīšanas detaļa
Slīpju jumta ar minerālvati un Finfoamm FF-PIR siltināšanas detaļa
Slīpju jumta ar Finfoamm FF-PIR siltināšanas detaļa
Slīpju jumta ar Finfoamm FF-PIR GYL siltināšanas detaļa
Ekspluatējama jumta siltināšanas detaļa. Terase virs pārseguma. Finnfoam FI/DRAIN
Ekspluatējama jumta siltināšanas detaļa. Terase virs pārseguma. Finnfoam FL
Ekspluatējama jumta siltināšanas detaļa. Terase virs pārseguma. Finnfoam DRAIN/DRAIN
Ekspluatējama apzaļumota jumta siltināšanas detaļa. Finnfoam FL/DRAIN
Ekspluatējama apzaļumota jumta siltināšanas detaļa. Finnfoam FL/DRAIN
Ekspluatējama apzaļumota jumta siltināšanas detaļa. Finnfoam FL
Ekspluatējamas terases un apzaļumota jumta siltināšanas detaļa
Plākšņu jumta virs profilēta skārda seguma siltināšanas detaļa
Plākšņu jumta savienojums ar trīskāršu mūra sienu pie parapeta
Jumta siltināšanas detaļa. Finnfoam FF-PIR
Jumta siltināšanas detaļa. Finnfoam FF-PIR
Jumta siltināšanas detaļa. Finnfoam FF-PIR
Mansarda jumts ar bitumena jumta segumu. FF-EPS
Jumta siltināšanas detaļa. FF-EPS
Jumta siltināšanas detaļa. FF-EPS
Ekspluatējama jumta siltināšanas detaļa. Vieglo automobiļu stāvlaukums
Mitro telpu segumu (grīdas uz grunts, starpsienas un pārseguma) siltināšanas detaļa
Saunas mūra sienas izolācija
Saunas sienas un grīdas salaiduma mezgls
Horizontāla cauruļvadu siltināšana
Horizontālā un vertikālā cauruļvadu siltināšana  (1 variants)
Horizontālā un vertikālā cauruļvadu siltināšana  (2 variants)
Vispusīga cauruļvadu siltināšana
Valoda